| THE INDUSTRIAL RAILWAY RECORD |
© APRIL 1974 |
PECKETT SIX-COUPLED TANK LOCOMOTIVE FOR PERSIA
"By the courtesy of the builders, Messrs. Peckett and Sons, of Bristol, we are enabled to illustrate one of two tank locomotives recently supplied by them to the Anglo-Persian Oil Co. Ltd. for service on their narrow gauge lines in the Abadan oil depot. The engine has cylinders 10 in. dia. by 15 in. stroke, and six-coupled drivers 2 ft. 6½ in. dia.; the "pony" truck under the cab has wheels 1 ft. 8 in. dia. The boiler has a barrel 3 ft. 1½ in. dia. and 7 ft. 5 in. long, with ninety-eight steel tubes 1½ in. external diameter; the firebox also is of steel, 3/8 in. thick (tube plate ½ in.), with a grate area of 10 sq. ft. The heating surface is 398 sq. ft. and the firebox 55 sq. ft.; the steam pressure is 180 lb. per sq. in. The weight of the engine empty is 19½ tons, whilst loaded and in running order it amounts to 23 tons, carries 520 gallons of water and 200 gallons of fuel oil. The wheelbase is 12 ft. 4 in., of which 7 ft. 6 in. is fixed. Steam and Hand-brakes are provided, and the engine is equipped with steam sanding gear - a valuable accessory where there is a likelihood of oil being present at times on the track. Centre couplers of the Norwegian hook type by the A.B.C. Coupler Co. are used. Painted bright green, finished with black bands having brilliant yellow stripes on each side, this locomotive has a very smart and attractive appearance reflecting credit to the builder in turning out such a useful machine.

Official photograph of Peckett 1750 of 1928 built for the Anglo-Persian Oil Co Ltd. (IRS Collection)

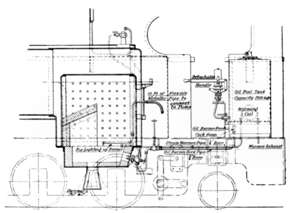
Arrangement of oil-burning apparatus on narrow gauge locomotives for the Anglo-Persian Oil Co Ltd.
"As the oil burning arrangement will be of special interest to many of our readers abroad, we append a drawing showing the arrangement of the firebox, with its brickwork furnace, air ports, etc. Two oil burners of the Kermode type are used, supplied with steam for the spraying jets from a turret fitting, placed high up in the cab, which also accommodates the injector steam valves, the blower, whistle, and pressure gauge; a master valve is provided by which all these fittings can be shut off at any time with the locomotive under steam. The position of the burners and pipe connections for oil and steam are distinctly shown on the drawing; these are said to give excellent results in service. A novel device is fitted for raising steam, when this has to be done away from any stationary supply, and this was also supplied by Messrs. Kermode's. A coil of steel pipe, which has a fine spraying jet, or nozzle, at its extremity, is temporarily introduced into the furnace; oil fuel is supplied to this coil from a small hand pump, fixed, as shown, on the front of the oil tank. Lighted waste having been thrown in, a supply of oil fuel is maintained under pressure in the coil and sprayed from the fine "rifled" nozzle at the end. After a few minutes, quite a bright fire results, and the firebrick becoming sufficiently heated to ensure good combustion, steam can be raised from cold water in from sixty to seventy minutes. As soon as 10 lb. pressure is reached the fixed burners can be started, the temporary coil removed, and the pressure rapidly raised to the full working figure.
"The railway system of the Anglo-Persian Oil Co. is laid to the 2 ft. 6 in. gauge, and extends to some forty miles, linking up the different oil wells at Masjid-i-Sulaiman and providing means of transport for stores and supplies between that district and the depot at Abadan, which is also the port of shipment for the oil."
("The Locomotive Magazine," 14th March 1931. The two class "M5 Special" locomotives concerned were Peckett's 1750 and 1816, dispatched respectively on 20th February 1928 and 10th October 1930. In June 1935 the name of the Anglo-Persian Oil Co Ltd was changed to the Anglo-Iranian Oil Co Ltd: the latter ordered a third engine of the same type, Peckett 1909, dispatched on 22nd October 1936 for use in Iran (Persia). - TJL)