| THE INDUSTRIAL RAILWAY RECORD |
© AUGUST 1968 |
| INDUSTRIAL RAILWAYS | |
| OF BEDFORDSHIRE |
A. J. WARRINGTON |
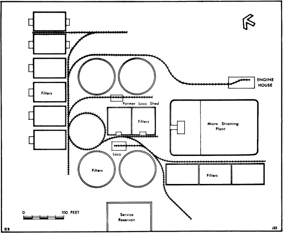
(2) MANTON LANE WATERWORKS, BEDFORD
Owned by Bedford Corporation Water Board now Bedfordshire Water Board), was a 2ft 0in gauge tramway about 320 yards long located at the old waterworks in Manton Lane, Bedford. Its sole purpose in life was to carry sand between the filter beds and the washing plant. The line was laid down in 1945-1946 and remained in operation until 1960 when the works became redundant upon the construction of a new works and reservoir to the west of the old works and nearer the River Ouse. In 1963 the verdant remains, as they had by then become, were sold for scrap.

The track was of the standard "Jubilee" contractors' type, consisting of light section flat-bottom rails bolted to steel sleepers. The wagon stock consisted mainly of the common steel side-tipping type of 1cu yd capacity, the majority being built by Robert Hudson & Co Ltd of Leeds. There were at least thirteen of these wagons, but by 1960 only six were in use, the rest being scattered about the works in various stages of dismemberment and decomposition. At the same time, three of the underframes of these wagons had been converted to flat trucks for carrying pumping machinery, and there were also two wagons (also by Robert Hudson) for carrying oil tanks, and one flat wagon. The oil tank wagons stood on an isolated section of track and were normally kept in a shed where the oil was unloaded. It has not been ascertained whether this section of line was ever connected to the rest of the system.
The locomotive stock consisted of two Motor Rail diesels. The first was a 22ton 20/28bhp engine (works number 8969 of 1945) which was supplied new to the Corporation on 18th September of that year. This engine was painted light green and was lettered "BEDFORD CORPORATION WATERWORKS" in pale yellow, shaded black, on each side. It was out of use by 1960 and was at that time stored in the engine shed. The second locomotive was Motor Rail 21286 which was built in 1958 for Diesel Loco Hirers Ltd. It was hired to various firms and was at Manton Lane from April to November 1960, being later overhauled by Motor Rail and sold to Cumberland Moss Litter Industry Ltd on 7th March 1966. The livery of this loco was plain medium green.
"NEW MINERAL RAILWAYS FOR STAFFORDSHIRE. The mineral line of railway which is to connect the Littleton Colliery at Huntingdon with the London and North Western line at Penkridge is now in active construction, and will, it is expected, be practically completed by the end of the year. The length of the new line is three and a-half miles, and it runs from end to end through the property of Lord Hatherton, on whose extensive estate the colliery is situate. Another line, mainly for mineral traffic, of still greater importance, is projected under the name of the Wolverhampton, Essington and Cannock Chase Railway Company, for the construction of which Parliamentary powers will be sought in the next session. The proposed railway will commence at Wolverhampton by a junction with the Wolverhampton and Bushbury branch of the Great Western Railway, and pass from thence to Essington, where it will form a junction with the mineral railway of the Holly Bank Colliery Company. From Essington the line will run to its termination in Norton, where it will form a junction with the Cannock Chase and Wolverhampton Railway, and the railway of the Cannock Chase Colliery Company Limited. Branch lines are also proposed which will connect the main line with the Grand Junction line of the London and North Western Company, the Norton branch of the same company, and the mineral railway of the Conduit Colliery Company. This railway scheme, if carried out on the lines proposed, will prove a most important "feeder" of fuel to the Black Country, in which district deliveries of mineral traffic have for some time past been inadequate, owing to the congested state of the railways at present available." ("Colliery Guardian", 5th January 1900.)